AMPIO DUE LOCALI

Muggio' (Monza Brianza)

Rif: 130
Condividi Linkedin Whatsapp Stampa
€ 130.000
Appartamento
65 Mq
2 Vani
Classe energetica G
1 camera
1 bagno
Ascensore
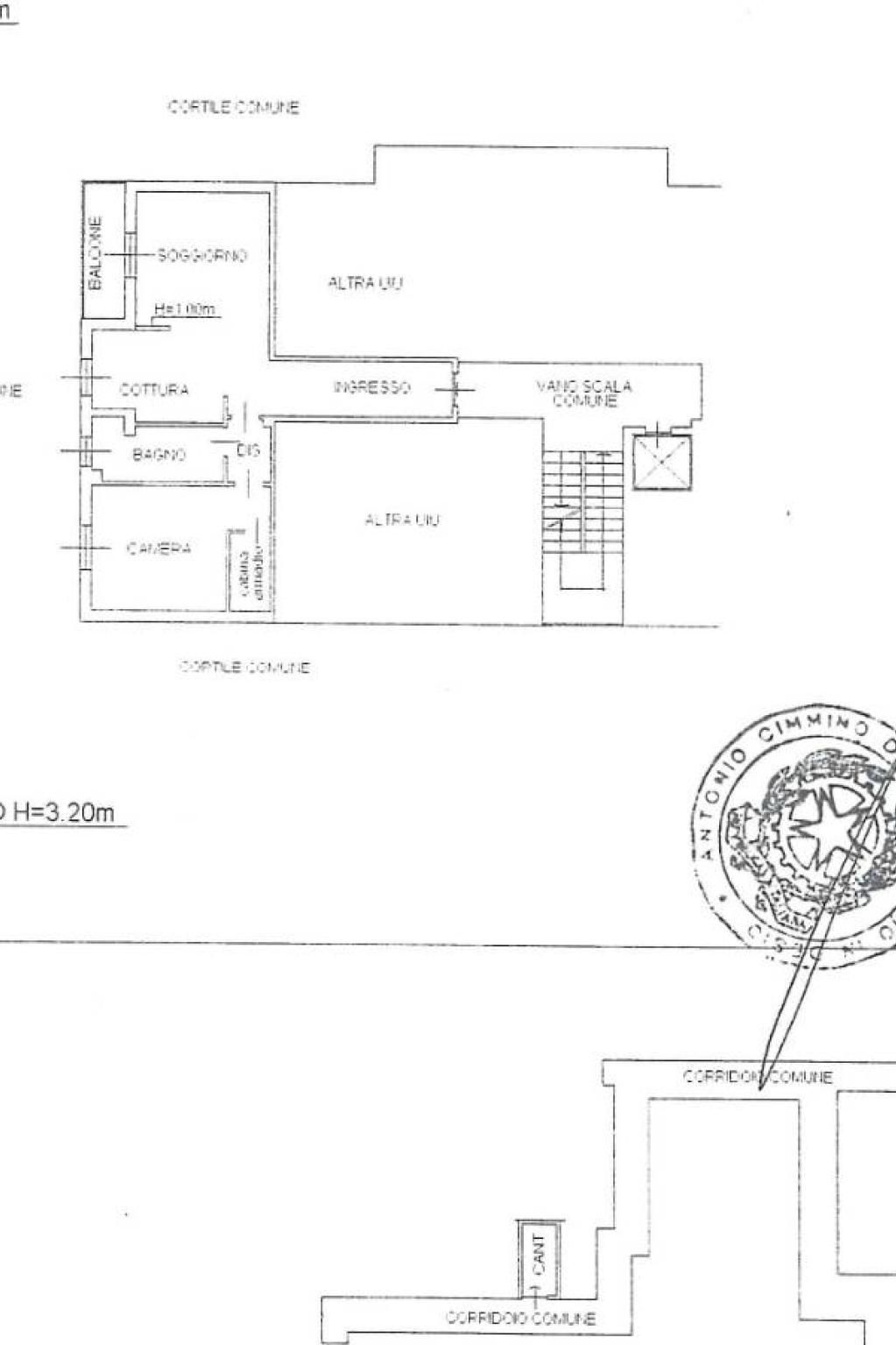
Muggiò, San Francesco, in zona comoda con le principali vie di comunicazione e nelle vicinanze di scuole e supermercati, proponiamo in vendita un ampio bilocale di circa 65 mq situato al secondo piano con ascensore.
L'immobile risulta così composto: ingresso, soggiorno con uscita sul balcone e cucina a vista, antibagno con bagno con doccia, ampia camera matrimoniale con cabina armadio/ripostiglio.
L'immobile risulta molto luminoso grazie all'esposizione a ovest.
Possibilità di ricavare un 3 locali.
Completa la soluzione una pratica cantina
Prezzo: Eu.130.000
DA VEDERE!

Dettaglio immobile

Contratto Vendita
Rif 130
Prezzo € 130.000
Provincia Monza Brianza
Comune Muggio'
Indirizzo Via San Francesco d'Assisi 60
Superficie 65 mq
Vani 2
Camere 1
Bagni 1
Classe energetica G (DL 90/2013)
EPgl,nren 175 kwh/m2 anno
Piano 2 / 5
Riscaldamento centralizzato
Condizioni abitabile
Spese condominiali € 200
Anno di costruzione 1970
Ascensore si
Cantina si
Cucina a vista
Balcone si

Consistenze

Descrizione Superficie Sup. comm.
Principali
Immobile - 2° piano 65 Mq 65 Mqc
Totale 65 Mqc

Planimetrie

Richiedi maggiori informazioni

Autorizzazione al trattamento dei dati personali+
Dichiaro di aver letto l'informativa sulla privacy ed accetto le condizioni d'utilizzo del servizio.
Riempi il campo con il codice riportato nell'immagine*
Codice Captcha
Chiamaci Contattaci